Palais Gallien
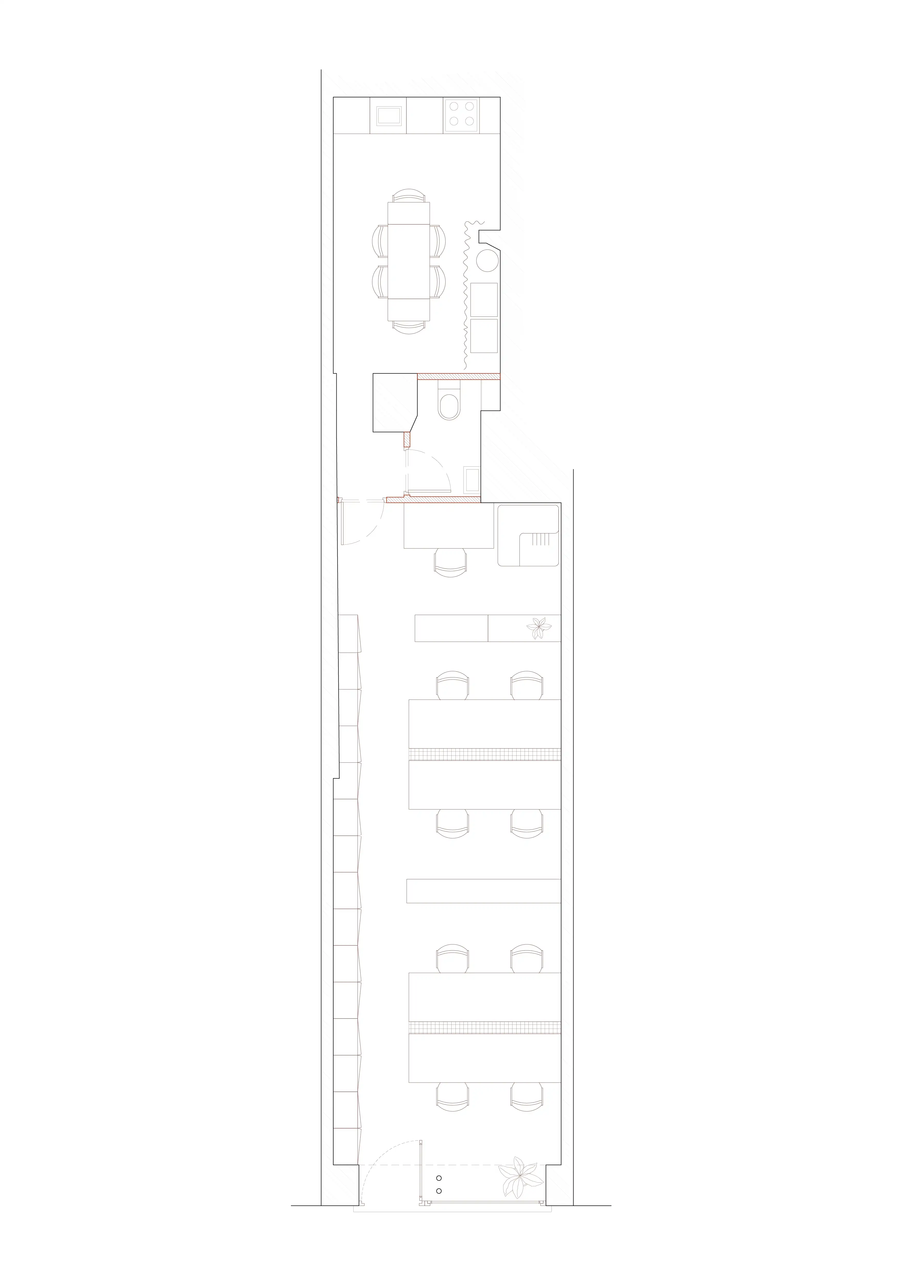
Réhabilitation d'un local commercial en bureaux
La rénovation de cet ancien local commercial a permis de mettre en scène une matérialité spécifique : un enduit bouchardé.
Avec un budget travaux très contraint, la stratégie de projet a d’abord consisté à définir les usages prioritaires puis identifier les interventions minimales à réaliser sur le local. Ces interventions ont ensuite été déclinées en 3 intentions-actions :
Soustraire – Additionner – Transformer
Soustraire
Le travail en soustraction a permis de retrouver les caractéristiques initiales de l’ancien commerce d’origine.
En phase diagnostic, les traces d’une ancienne porte dissimulée dans l’épaisseur du mur porteur et derrière l’enduit ciment, nous ont conduits à rouvrir un passage existant. Ce faisant, la restructuration du plan et des circulations ont permis de créer un accès à la cuisine sans modification structurelle, évitant ainsi une reprise en sous-œuvre et un vote en AG de copro.
Dans l’open-space, la dépose du faux-plafond a permis de retrouver une grande hauteur. Tandis que la mise en place d’une imposte vitrée sur la menuiserie en façade apporte une meilleure luminosité.
La cuisine initialement pourvu d’un faux-plafond à grille 60x60cm a été déposé pour regagner du volume et faire la découverte d’un puit de lumière zénithale.
Au sol, la dépose du carrelage existant a permis de retrouver le sol existant, une faïence à petits carreaux en cabochon.
Additionner
Seul le mobilier et les éléments techniques (gaine, luminaires, fluides) ont bénéficié d’un travail en addition par rapport à l’état d’origine du local commercial.
Le plafond assure l’ensemble des besoins techniques, alternant luminaires et plafonds rayonnants.
La distribution électrique est réalisée « en apparent » via des tubes inox et chemine dans une rigole technique pour alimenter les postes.
Dans un souci d’économie, la structure du meuble cuisine est auto-construite par un assemblage de profilé aluminium et de connecteurs. Les plateaux sont en contreplaqué filmé de coffrage achetés en magasin de bricolage.
Pour contraster avec les matériaux industriels (inox, acier, aluminium) des éléments techniques, les aménagements et le mobilier sont fabriqués en bois de tripli d’épicéa finition huilée.
Un vaste meuble bibliothèque-matériauthèque de 8m de long habille le mur de l’agence et apporte une ambiance chaleureuse.
Transformer
Une idée forte défendu par l’agence en rénovation. C’est sortir d’une dialectique qui opposerait d’un côté la conservation, la restauration, la cristallisation d’un état existant presque muséifié, figé dans un état premier, lui conférer un statut d’intouchable ; et d’un autre côté, le curage, la dépose, la coupe rase, la suppression d’un revêtement désuet pour le recouvrir d’un doublage avec un revêtement plus « in ».
Entre l’espace du 0 et du 1 ; entre conservation et curage, nous pensons qu’il existe des nuances, d’autres pistes, notamment celles de la transformation de la matière elle-même. Une altération de la matière existante, un changement de finition, une transfiguration. C’est ce que nous avons expérimenté pour notre local d’agence.
Les murs en pierre bordelaise étaient entièrement recouverts d’une forte épaisseur d’enduit cimenté posé à la tyrolienne, écrasé à la taloche, puis peint en jaune. Plutôt que d’essayer de l’enlever, ce qui aurait été trop couteux et trop long ; plutôt que de le peindre, ce qui n’aurait pas améliorer son aspect ; plutôt que de le recouvrir par un doublage, ce qui aurait été couteux, et une perte de place ; nous avons décidé de le transformer et d’en faire un élément à part.
Cette matière sans intérêt, assez banal ; nous avons décidé de la traiter comme un élément précieux, une boiserie, un soubassement. Pour cela nous avons bouchardé l’enduit pour lui donner un aspect brut, presque à la manière d’un béton brutaliste, surmonté d’un enduit de ratissage lisse.
Pour compléter cette démarche de transformation, nous avons opté pour le réemploi d’éléments de plomberie, lavabos et robinetterie des wc ; démarche désormais systématique dans les projets de l’agence.
Client : privé / Budget : 40k€ HT / Surface : 60 m² / Programme : bureaux / Équipe : asné architecture / Calendrier : livraison 2025